Harfsen
Harfsen | NL
uitbreiding
transformatie
Uitbreiding vakantiewoning met uitzicht op de bossen

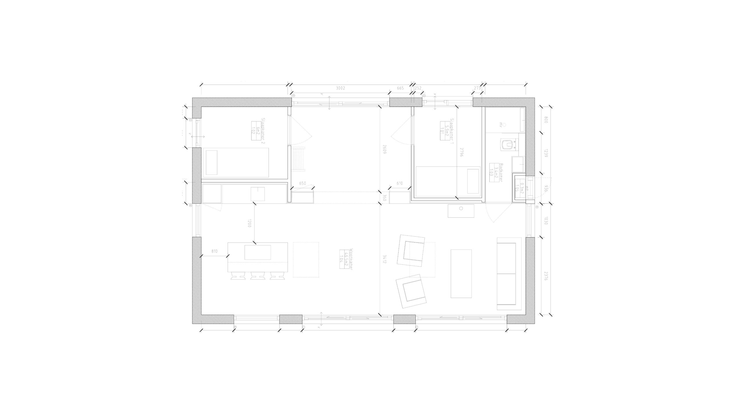
Het project staat in een vakantiepark bestaande uit een serie bungalows met uitzicht op het bos. De bungalows waren niet afgestemd op de verschillende locaties en er was een mogelijkheid om de woning uit te breiden. Veel potentie dus voor een interessant ontwerp.

Het ontwerp bestaat uit het uitbreiden van de woning aan de korte zijde, waardoor de volume langer wordt. Het openen van de plattegrond aan de bos-zijde om ruimte te maken voor een woonvolume met uitzicht op de bossen. Verlaagde plafonds zijn verwijderd om maximaal gebruik te maken van de hoogte. De overige slaapkamers en badkamers en keukenwand zijn ondergebracht in een houten strook aan de lange wand. Deuren zijn blind opgenomen in bamboe wandbekleding en de keuken is bekleed met hetzelfde materiaal. Verder wordt er gekookt aan een keukeneiland, eveneens met uitzicht op de bossen.

Het resultaat is een sched-like interieur met een grote leefruimte met uitzicht op de bossen. Een unieke woning waar met veel plezier gerecreëerd wordt.